Top
/ Scandicci - Badia a Settimo
Scrivici Chiamaci

Scandicci - Badia a Settimo

Vendita / Residenziale / IN TERRATETTO RIF.04450

428.000€

Dettagli

4
Vani
3
Camere
100 Mq
Superficie
2
Bagni
Terreno
Piano
42 Mq
Giardino
A
APE (kwh/m²a)
  • Comune: SCANDICCI
  • Zona: BADIA A SETTIMO
  • Stato Immobile: Ristrutturato

descrizione

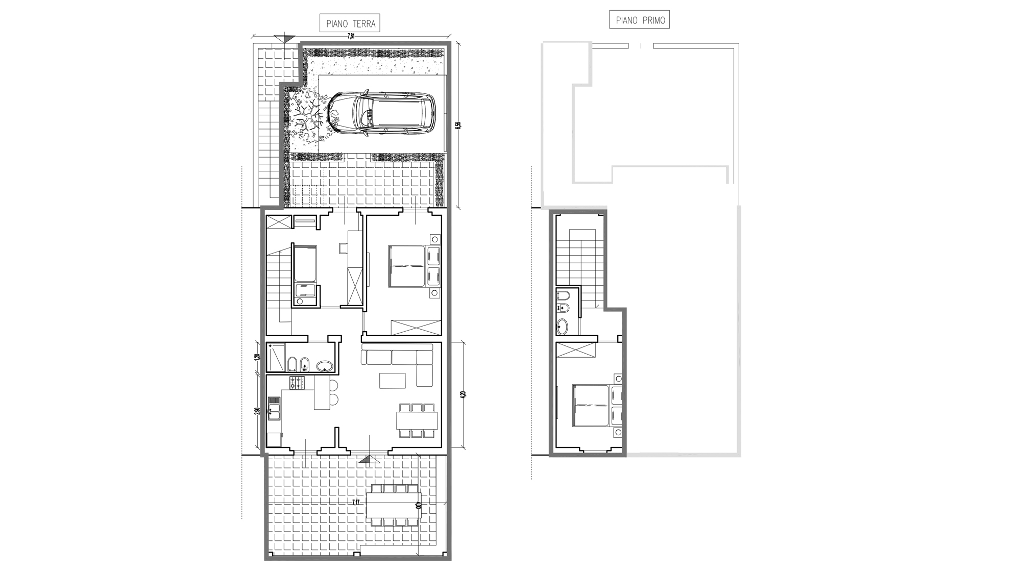
In zona ben servita e immersa nel verde, ristrutturazione completa di un appartamento di 100mq in bifamiliare e sviluppato su due livelli. Al piano terra è composto da soggiorno con angolo cottura, camera matrimoniale, camera singola e bagno finestrato; al piano primo terza camera con bagno en suite. Completano la proprietà un posto auto, il loggiato di 30mq e un giardino di 42mq. Termo-singolo ad alimentazione elettrica e predisposizione aria condizionata. Classe energetica "A". Richiesta € 428.000 tratt. Possibilità di scelta delle finiture e di usufruire di detrazioni fiscali. Consegna entro fine 2025. Per informazioni Gabriele Zuardi 348.9347848

Planimetria

Arca Immobiliare

Immobili Simili

Scandicci - Badia a Settimo

Scandicci - Badia a Settimo 428.000€

Vendita RIF.04450
4
Vani
3
Camere
100 Mq
Superficie
2
Bagni
Terreno
Piano
42 Mq
Giardino
Scopri di più
Scandicci - Casignano (V2)

Scandicci - Casignano (V2) 430.000€

Vendita RIF.04477
3
Vani
2
Camere
113 Mq
Superficie
2
Bagni
Terreno
Piano
103 Mq
Giardino
Scopri di più
Scandicci - Casignano (C)

Scandicci - Casignano (C) 490.000€

Vendita RIF.04479
4
Vani
3
Camere
168 Mq
Superficie
3
Bagni
Seminterrato
Piano
1638 Mq
Giardino
Scopri di più

Contattaci per Scandicci - Badia a Settimo

Acconsento al trattamento dei dati personali. Consenso ai sensi dell'Informativa Art.13 del Regolamento UE n. 2016/679: In esecuzione dell'informativa, recante disposizioni a tutela delle persone e degli altri soggetti rispetto al trattamento dei dati personali, il/la Richiedente fornisce il consenso al trattamento dei propri dati personali, per gestire la presente richiesta di informazioni. IN NESSUN CASO i suoi dati saranno ceduti a terzi a qualsiasi titolo.